Pokaran

Rajasthan


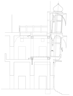
Fort Pokaran, a 14 century citadel northern Rajasthan, on the edge of the great Thar Desert, build as an important staging post on the Silk Road. The facade above was build in the mid 19 century with rather flimsy construction. The Jharoka, or oriel window, in the centre is moving away from facade of the main building due to ground movements. On a regular basis this movement is measured and the structure stablised.

346 Kennington Road SE11 4LD +44 (0) 207 793 0221

Silk Mews Architects